Appartamento plurilocale in vendita a Concordia Sagittaria

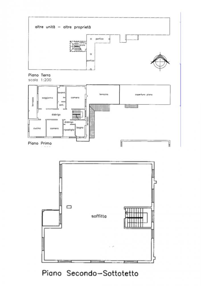
Proponiamo in vendita a Concordia Sagittaria, in zona Cavanella, appartamento su due piani con ingresso indipendente e proprio giardino.
L'immobile si presenta luminoso, in buone condizioni.

Si accede dal piano terra, con ingresso al piano 1° su ampio disbrigo.
- Cucina abitabile separata dal soggiorno con accesso in terrazza;
- 3 ampie camere da letto;
- antibagno e lavanderia ristrutturato nel 2001 con box doccia e serramenti;
- 1 ripostiglio;
- secondo bagno con uscita in terrazza scoperta seguita da una copertura piana, una soluzione ideale per realizzare un' ulteriore terrazza vivibile o unire le due aree esterne.

Al secondo piano, una spaziosa soffitta offre ottime possibilità di ampliamento: può essere trasformata in ulteriori stanze, studio o semplicemente utilizzata come deposito.

Al piano terra, all'esterno, garage con basculante elettrico e 2 magazzini completano l'unità.

Giardino privato ben curato.

Riscaldamento gpl, clima a 2 split, 2 stufe (svedese a legna + a pellet) siete in soggiorno e in camera matrimoniale.

Finiture in legno nella zona notte e in soggiorno, veneziana in ingresso e in grès in cucina.

Cerchi il mutuo migliore per realizzare i tuoi sogni?
Calcola la rata su questo sito: https://www.credipass.it/landing-broker/ Classe Energetica: D EPI: 194,27 kwh/m2 anno

 
Riferimento: V306
Ubicazione: Concordia Sagittaria - Cavanella (VE)
Tipologia: appartamento
Piani: 2
Bagni: 2
Camere: 3 camere
Cucina: cucina abitabile
Arredo: non arredato
Riscaldamento: autonomo
Superficie: 131 mq
Cl. energetica: D EPgl:194.27
Contratto: in vendita
Prezzo: 180.000 €
Mostra più dettagli