Appartamento plurilocale in vendita a Gruaro

In contesto tranquillo e riservato, proponiamo in vendita un appartamento unico nel suo genere, disposto su due livelli con ingresso indipendente, giardino privato e terrazzo abitabile.

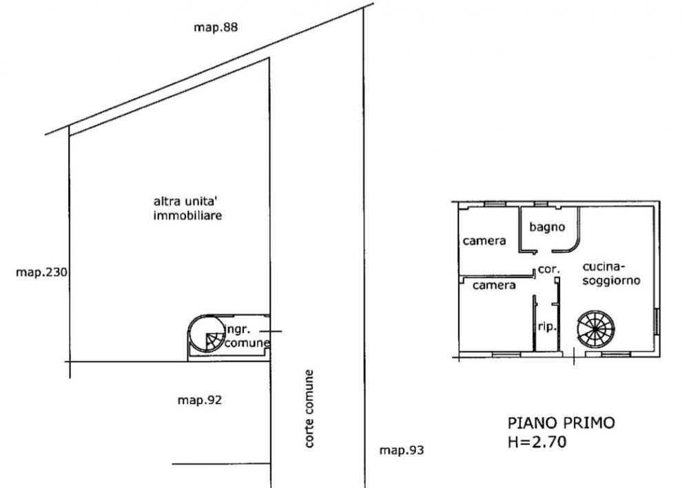
Al piano terra:
L'ingresso si apre su un ampio locale magazzino, ideale anche come spazio multiuso o zona hobby. Da qui, una scala a chiocciola conduce al piano superiore.

Al piano primo:
La zona giorno si compone di un luminoso soggiorno con cucina a vista, con accesso diretto a un grande terrazzo vivibile, perfetto per momenti di relax o pranzi all'aperto.
La stessa terrazza è collegata al piano terra tramite un montacarichi/ascensore esterno.

La zona notte comprende due camere da letto e un bagno finestrato con box doccia.

Riscaldamento autonomo con caldaia a gas, radiatori in ghisa + ventilconvettore nel disimpegno e 1 split per aria condizionata.

Zanzariere già installate.

Struttura antisismica con muratura in cemento armato

Completano la proprietà un giardino esclusivo, ideale per chi cerca privacy e uno spazio verde da vivere in ogni stagione.
Nessuna spesa condominiale.

Cerchi il mutuo migliore per realizzare i tuoi sogni?
Calcola la rata su questo sito: https://www.credipass.it/landing-broker/ Classe Energetica: F EPI: 265,24 kwh/m2 anno

 
Riferimento: V201
Ubicazione: Gruaro - Boldara (VE)
Tipologia: appartamento
Piani: 1
Bagni: 1
Camere: 2 camere
Cucina: cucina abitabile
Arredo: non arredato
Stato immobile: abitabile
Riscaldamento: autonomo
Superficie: 222 mq
Cl. energetica: F EPgl:265.24
Contratto: in vendita
Prezzo: 149.000 €
Mostra più dettagli